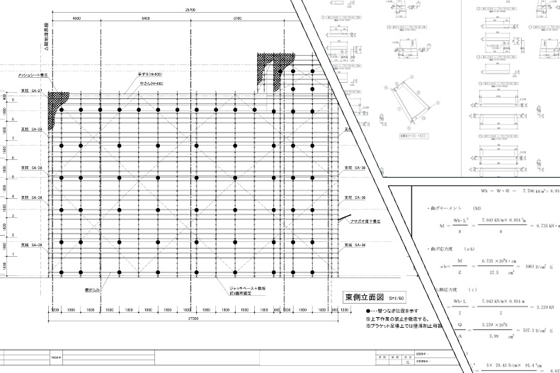
各種の足場や支保工の配置計画・強度計算を行います。3Dシステムを用いた構造解析を含め、お客様の施工を安全に設計します。
業務内容を詳しくみる
申請先は現場ごとに異なり、手続き・受領の手間が発生します。 当社が各種申請を一括で請け負い、工程に沿ってスムーズに取得まで進めます。
安全の確保は、「意識」から始まります。 長年にわたって多面的に施工に関わってきた知見に基づいた当社の安全教育は、各社よりご好評を賜っております。